In een doodlopende straat in centrum Kapellen, met alle voorzieningen van deze bruisende gemeente op wandelafstand, vinden we deze ruime villa op een mooi perceel in een prachtig groen en privatief kader van ca 1343m².
Deze woning werd opgetrokken volgens de regels van de kunst in 1986 en biedt maar liefst 247m² aan woonruimte op twee niveaus.
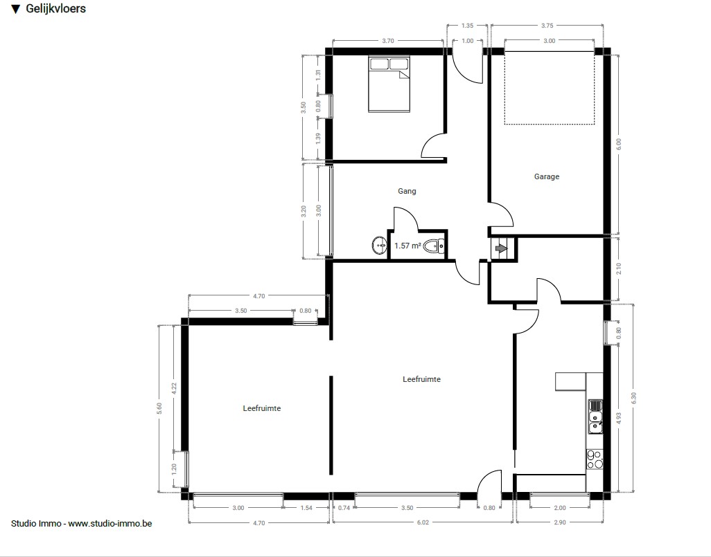
Het gelijkvloers omvat o.a. een ruime inkomhal met gastentoilet, een eerste ruime slaapkamer of die zich uitermate leent voor vrij beroep, bureel of speelkamer.
Verder een ruime keuken met aanpalend de praktische berging en inpandige garage.
Buiten kan in alle weersomstandigheden genoten worden van de prachtige omgeving onder het overdekt terras.
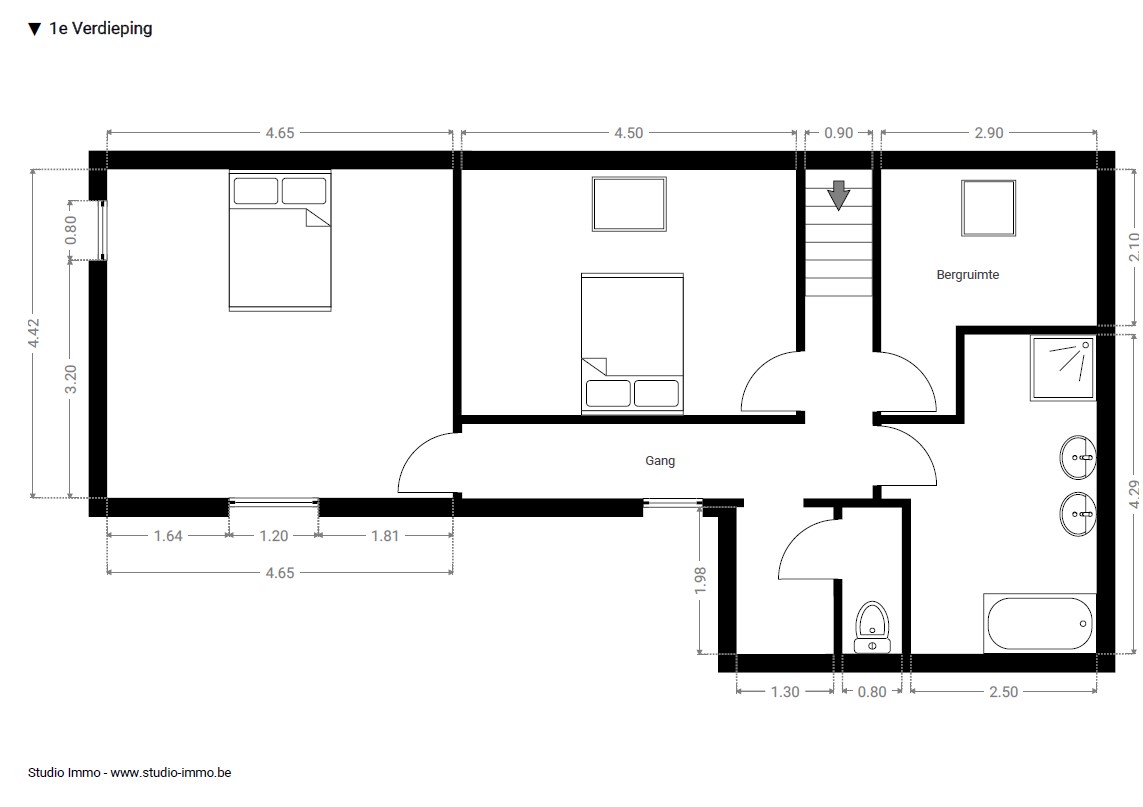
De eerste verdieping biedt onderdak aan nog twee royale slaapkamers en de verzorgde badkamer. Extra bergruimte vinden we in de bergkamer.
Deze woning biedt tal van troeven en mogelijkheden en kan na wat liefde en opfrissingswerken uw ideale woning vormen met oog op een beloftevolle toekomst.
Benieuwd naar de mogelijkheden ? Contacteer NEON VASTGOED voor meer info of een bezoek ter plaatse.
Lees verder
Deze woning werd opgetrokken volgens de regels van de kunst in 1986 en biedt maar liefst 247m² aan woonruimte op twee niveaus.
Het gelijkvloers omvat o.a. een ruime inkomhal met gastentoilet, een eerste ruime slaapkamer of die zich uitermate leent voor vrij beroep, bureel of speelkamer.
Verder een ruime keuken met aanpalend de praktische berging en inpandige garage.
Buiten kan in alle weersomstandigheden genoten worden van de prachtige omgeving onder het overdekt terras.
De eerste verdieping biedt onderdak aan nog twee royale slaapkamers en de verzorgde badkamer. Extra bergruimte vinden we in de bergkamer.
Deze woning biedt tal van troeven en mogelijkheden en kan na wat liefde en opfrissingswerken uw ideale woning vormen met oog op een beloftevolle toekomst.
Benieuwd naar de mogelijkheden ? Contacteer NEON VASTGOED voor meer info of een bezoek ter plaatse.
- Adres
- Olmendreef 10 , 2950 Kapellen
- Type
- Huis
- Subtype
- Open bebouwing
- Status
- Verkocht
- EPC Waarde
- 654 kWh/m²
- Keuring elektriciteit
- Niet conform
654
Algemeen
- Ruimtes
- Leefruimte
- #1 60m²
- Keuken
- #1 19m²
- Slaapkamer
- #1 21m² #2 14m² #3 13m²
- Badkamer
- #1 12m²
- Terras
- #1 30m²
- Voorzieningen
-
- Parking
- Oppervlaktes
- Woonoppervlakte
- 247 m²
- Grondoppervlakte
- 1.343 m²
- Prijs
- Kadastraal inkomen
- 3.294,— €
- Referentie
- ff9f4135-8853-4675-89c6-8c9a75362c47
Comfort
- Kenmerken
- Algemeen
- Goede staat
- Badkamer
- Goede staat
- Keuken
- Goede staat
- Oriëntatie
- Tuin oriëntatie
- Zuid-Oost
- Oriëntatie op het terras
- Zuid-Oost
Plannen en documenten
- Plannen
- Documenten
Wettelijke info
- Wettelijke info
- EPC Waarde
- 654 kWh/m²
- EPC Niveau
- F
- EPC Code
- 20240618-0003286619-RES-1
- Overstromingsrapport
- P-score: A | G-score: A
- Ruimtelijke ordening
-
- Omgevingsvergunningsvergunning voor stedenbouwkundige handelingen: vergunning uitgereikt
- Geen voorkooprecht ruimtelijke ordening aanwezig (Gvkr)
- Verkavelingsvergunning uitgereikt
- Geen rechterlijke herstelmaatregel of bestuurlijke maatregel opgelegd (Gmo)
- Geen risicozone voor overstromingen
- Bijkomende info
-
- Bestemming: woongebieden
Renovatieplicht: ja
- Bestemming: woongebieden
Jij zoekt… wij vinden!
De kogel is door de kerk en je hebt besloten dat het tijd is op zoek te gaan naar je droomhuis. Vaak is dat niet zo eenvoudig als het lijkt. En heb je morgen je droomhuis gevonden, dan wordt het misschien wel van onder je neus weggekaapt of is het zelfs al verkocht nog voor je het had kunnen bekijken. Snel zijn is niet langer genoeg; hypersnel zijn is de boodschap!
Geen nood want bij NEON staan we voor je klaar! Wij bevragen elke klant in de zoektocht naar zijn droomhuis. Daarna kunnen wij heel gericht meezoeken. Van zodra er nieuwe interessante woningen bij ons binnenkomen, die aan jouw eisen voldoen, ben jij de eerste die het weet. Het is simpel: laat je contactgegevens hier achter.