In een rustige straat vlak bij het centrum van Maria-Ter-Heide in Brasschaat ligt deze moderne en lichtrijke woning uit 2011, die recent nog energetisch werd geoptimaliseerd.
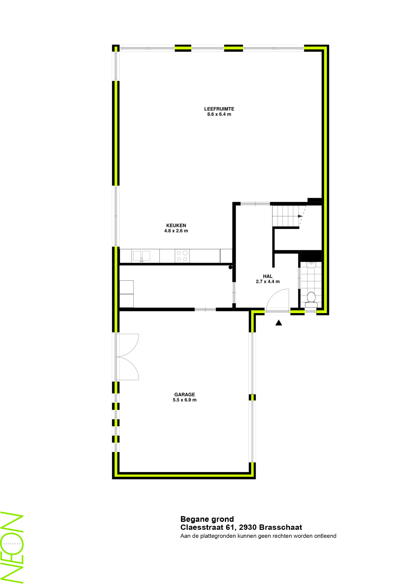
Je komt binnen via een ruime inkomhal met gastentoilet, waarna de woning zich opent naar een prachtige leefruimte met open keuken. Grote raampartijen zorgen hier voor een overvloed aan natuurlijk licht en een mooi contact met de tuin en het terras. Op het gelijkvloers vind je verder een dubbele inpandige garage en een praktische wasberging.
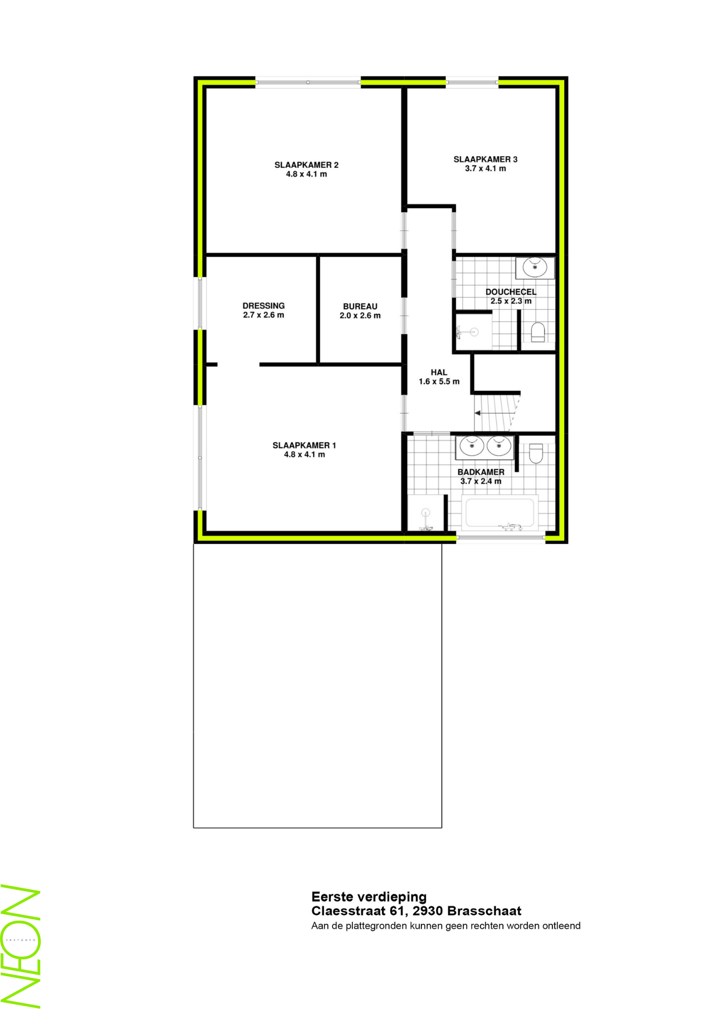
De eerste verdieping telt drie slaapkamers, waarvan één met een eigen dressing, twee badkamers en een bureau dat ook perfect kan dienen als extra berging of dressing. De woning is bovendien uitgerust met zonnepanelen, een thuisbatterij, bijkomende zonnewering op het gelijkvloers en rolluiken aan de slaapkamers.
Buiten geniet je in alle rust van de zonnige tuin en het terras, waar de elegante leibomen vanaf de lente voor een aangename en natuurlijke privacy zorgen.
Ben je op zoek naar een instapklare woning op een fijne en rustige locatie in Brasschaat? Maak dan snel een afspraak en ontdek zelf de charme van deze woning.
(opp. ref. EPC)
Lees verder
Je komt binnen via een ruime inkomhal met gastentoilet, waarna de woning zich opent naar een prachtige leefruimte met open keuken. Grote raampartijen zorgen hier voor een overvloed aan natuurlijk licht en een mooi contact met de tuin en het terras. Op het gelijkvloers vind je verder een dubbele inpandige garage en een praktische wasberging.
De eerste verdieping telt drie slaapkamers, waarvan één met een eigen dressing, twee badkamers en een bureau dat ook perfect kan dienen als extra berging of dressing. De woning is bovendien uitgerust met zonnepanelen, een thuisbatterij, bijkomende zonnewering op het gelijkvloers en rolluiken aan de slaapkamers.
Buiten geniet je in alle rust van de zonnige tuin en het terras, waar de elegante leibomen vanaf de lente voor een aangename en natuurlijke privacy zorgen.
Ben je op zoek naar een instapklare woning op een fijne en rustige locatie in Brasschaat? Maak dan snel een afspraak en ontdek zelf de charme van deze woning.
(opp. ref. EPC)
- Adres
- Claesstraat 61 , 2930 Brasschaat
- Type
- Huis
- Status
- Te koop
- EPC Waarde
- 93 kWh/m²
- Keuring elektriciteit
- Conform
93
Algemeen
- Voorzieningen
-
- Garage
- Oppervlaktes
- Woonoppervlakte
- 254 m²
- Grondoppervlakte
- 239 m²
- Prijs
- Vraagprijs
- 585.000,— €
- Kadastraal inkomen
- 1.844,— €
- Referentie
- 0192d73e-8d60-4f81-a2d5-629505d9146b
Comfort
- Kenmerken
- Algemeen
- Uitstekende staat
- Badkamer
- Uitstekende staat
- Keuken
- Uitstekende staat
Wettelijke info
- Wettelijke info
- EPC Waarde
- 93 kWh/m²
- EPC Niveau
- A
- EPC Code
- 20260227-0003812244-RES-2
- Overstromingsrapport
- P-score: A | G-score: A
- Ruimtelijke ordening
-
- Omgevingsvergunningsvergunning voor stedenbouwkundige handelingen: vergunning uitgereikt
- Geen voorkooprecht ruimtelijke ordening aanwezig (Gvkr)
- Verkavelingsvergunning: geen verkavelingsvergunning uitgereikt
- Dagvaarding en herstelvordering: dagvaarding en/of herstelvordering uitgebracht
- Woongebied