Op een toplocatie, omgeven door groen, bevindt zich deze unieke volledig gerenoveerde laagbouwvilla die uitblinkt in ruimte, comfort en veelzijdigheid. De doordachte indeling en talrijke mogelijkheden maken dit pand uitzonderlijk.
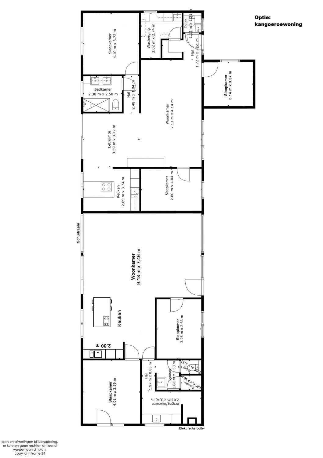
Of u nu droomt van een grote gezinswoning, een kangoeroewoning, een combinatie wonen/werken, of een praktijkruimte aan huis: dit eigendom leent zich perfect voor elk van deze scenario’s. Om dat extra te verduidelijken, werden er plannen uitgewerkt die de verschillende indelingsopties visualiseren.
De woning omvat een ruime inkomhal met gastentoilet, aansluitende berging/wasruimte, een lichtrijke L-vormige leefruimte met halfopen keuken, twee slaapkamers en een bureau dat ook als derde slaapkamer kan dienen. De badkamer is modern ingericht met inloopdouche, dubbele lavabo en toilet.
Achter het woongedeelte bevindt zich een indrukwekkende polyvalente ruimte van ca. 68 m², voorzien van twee bijkomende kamers, een extra keuken, berging en twee toiletten. Deze zone kan perfect ingericht worden als praktijk, atelier, gastenverblijf, kangoeroewoning of uitbreiding van de leefruimtes.
Bovendien is er nog een ruime schuur van ca. 48 m², ideaal voor opslag of hobby’s. De tuin rondom de woning biedt volledige privacy en twee zonnige terrassen die naadloos aansluiten op de leefruimtes.
Troeven op een rij:
- Volledig gerenoveerde laagbouwvilla
- Grote polyvalente achterbouw met talloze mogelijkheden
- Geschikt voor praktijk, kangoeroewonen, wonen–werken, ruime gezinswoning...
- Indelingsvarianten op plan beschikbaar
- Drie tot vijf slaapkamers mogelijk, afhankelijk van de gekozen indeling
- Mogelijkheid tot een aparte kantoor-/bureauruimte
- Schuur van ca. 48 m²
- Prachtige tuin met privacy en meerdere terrassen
- Gelegen in een rustige, groene en geliefde buurt van Brasschaat
- Een unieke kans voor wie zoekt naar ruimte, flexibiliteit en een toekomstgerichte woonoplossing.
Interesse? info@neonvastgoed.be of 03/336.88.88
Lees verder
Of u nu droomt van een grote gezinswoning, een kangoeroewoning, een combinatie wonen/werken, of een praktijkruimte aan huis: dit eigendom leent zich perfect voor elk van deze scenario’s. Om dat extra te verduidelijken, werden er plannen uitgewerkt die de verschillende indelingsopties visualiseren.
De woning omvat een ruime inkomhal met gastentoilet, aansluitende berging/wasruimte, een lichtrijke L-vormige leefruimte met halfopen keuken, twee slaapkamers en een bureau dat ook als derde slaapkamer kan dienen. De badkamer is modern ingericht met inloopdouche, dubbele lavabo en toilet.
Achter het woongedeelte bevindt zich een indrukwekkende polyvalente ruimte van ca. 68 m², voorzien van twee bijkomende kamers, een extra keuken, berging en twee toiletten. Deze zone kan perfect ingericht worden als praktijk, atelier, gastenverblijf, kangoeroewoning of uitbreiding van de leefruimtes.
Bovendien is er nog een ruime schuur van ca. 48 m², ideaal voor opslag of hobby’s. De tuin rondom de woning biedt volledige privacy en twee zonnige terrassen die naadloos aansluiten op de leefruimtes.
Troeven op een rij:
- Volledig gerenoveerde laagbouwvilla
- Grote polyvalente achterbouw met talloze mogelijkheden
- Geschikt voor praktijk, kangoeroewonen, wonen–werken, ruime gezinswoning...
- Indelingsvarianten op plan beschikbaar
- Drie tot vijf slaapkamers mogelijk, afhankelijk van de gekozen indeling
- Mogelijkheid tot een aparte kantoor-/bureauruimte
- Schuur van ca. 48 m²
- Prachtige tuin met privacy en meerdere terrassen
- Gelegen in een rustige, groene en geliefde buurt van Brasschaat
- Een unieke kans voor wie zoekt naar ruimte, flexibiliteit en een toekomstgerichte woonoplossing.
Interesse? info@neonvastgoed.be of 03/336.88.88
- Adres
- Charlottalei 2 , 2930 Brasschaat
- Type
- Huis
- Subtype
- Open bebouwing
- Status
- Te koop
- EPC Waarde
- 214 kWh/m²
- Keuring brandstoftank
- Niet toepasbaar
- Keuring elektriciteit
- Conform
214
Algemeen
- Ruimtes
- Polyvalente ruimte
- #1 68m²
- Leefruimte
- #1 43m²
- Keuken
- #1 11m² #2 8m²
- Slaapkamer
- #1 15m² #2 9.5m² #3 11m² #4 14m² #5 10.5m²
- Badkamer
- #1 6m²
- Voorzieningen
-
- Buitenstaanplaats
- Garage
- Oppervlaktes
- Woonoppervlakte
- 252 m²
- Grondoppervlakte
- 1.471 m²
- Prijs
- Vraagprijs
- 895.000,— €
- Kadastraal inkomen
- 1.902,— €
- Referentie
- 8976e961-eeef-4986-8d2a-ea48366a9d16
Comfort
- Kenmerken
- Algemeen
- Uitstekende staat
- Badkamer
- Uitstekende staat
- Keuken
- Uitstekende staat
- Oriëntatie
- Tuin oriëntatie
- Zuid-Oost
- Oriëntatie op het terras
- Zuid-Oost
- Type verwarming
-
- Centrale verwarming
- Energie
-
- Gas
- Eco
-
- Dubbele beglazing
- Geïsoleerd dak
Wettelijke info
- Wettelijke info
- EPC Waarde
- 214 kWh/m²
- EPC Niveau
- C
- EPC Code
- 20250409-0003570629-RES-3
- Overstromingsrapport
- P-score: D
| G-score: A - Renovatieplicht
- Nee
- Asbestcertificaat referentie
- 20250414-000153.001
- Ruimtelijke ordening
-
- Omgevingsvergunningsvergunning voor stedenbouwkundige handelingen: vergunning uitgereikt
- Geen voorkooprecht ruimtelijke ordening aanwezig (Gvkr)
- Verkavelingsvergunning uitgereikt
- Geen rechterlijke herstelmaatregel of bestuurlijke maatregel opgelegd (Gmo)
- Geen risicozone voor overstromingen
- Stedenbouwkundig certificaat
- Woongebied